因此无论是在新房市场 。还是二手房市场 。包括增值潜力上 。11层综合比较都优于18层高层 。

文章插图
05:11层的小高层是被开发商做为重点打造的产品 。绿化及配套投入高于18层的高层 。
由于土地价格越来越高 。土地成本过高 。高层已做为开发的主要方向 。而多层 。别墅做为稀缺产品 。11层的的小高层成为宠儿 。被开发商打造成所谓的洋房 。为了提高溢价 。开发商在绿化和配套上的投入都远大于18层及以上的高层 。房价高有高的道理 。高品质一定是高价格 。
06:从长远考虑 。11层小高层的维修和拆迁都优于18层高层 。
现在很多人担心高层建筑在几十年会沦为贫民区 。即不好维修改造 。也不宜于拆迁安置 。虽然有些夸张 。但是也有一定的道理 。
至少维修和改造的难度 。11层的小高层确实比18层高层容易 。从这方面考虑 。11层小高层的使用年限要比高层长 。房屋做为国民的最重要的财产 。同时还做为传承的财产 。未来在失去棚改和城镇化后 。很难再有大的造城运动后 。几十年后现在的高层建筑确实很难被拆迁 。一些高层真的会沦为建筑垃圾 。很难传承下去 。而维护成本低维护较好的小高层 。有可能成为传承的资产 。

文章插图
结论:从以上分析 。11层小高层是介于别墅和高层之间的房屋类型 。单从房价上而言高于18层高层 。但是从从居住体验 。采光 。尤其是公摊 。未来的增值潜力等多方面都优于18层高层 。
概括起来 。就是11层与18层的高层相比 。买时贵点 。但住的舒服 。未来更容易卖出 。价格也高 。即使不出售 。是有可能传承房屋 。
因此11层小高层性价比高于18层高层 。可以说是电梯房中性价比最高的住房 。高层建筑由于城镇化的兴起 。由于地价的不断上涨 。是时代的产物 。至于未来会如何?是值得思考的一个问题 。至于将来究竟如何?让它留给时间吧》我们所能做的 。只能现在的选择 。

文章插图
其他观点:
冷眼看地产:资深房地产分析师 。不卖房子 。只分享专业的购房知识 。
冷眼首先抛结论:11层小高层和18层高层相比 。11层小高层性价比高 。
首先从居住舒适度上:11层小高层居住密度低、电梯使用频率少、私密性更高;其次18层高层有一半的户型都是南北不通透、连廊户型 。户型远远差与11层;最后18层的公共部分面积大 。得房率低 。因此11层性价比远远高于18层 。
一、18层相比11层居住舒适度差 。私密性差、电梯使用不便 。
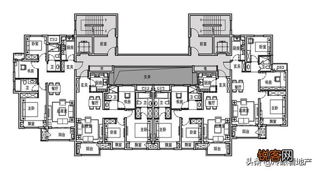
11层户型平面图(一梯两户)

文章插图
18层户型平面图(二梯两户)

文章插图
11层和18层的最大的区别就是平层布局不同 。11层能做到一梯两户户型 。18层只能做到两梯四户户型 。这就造成18层的居住舒适度是远远低于11层的 。
18层居住私密性差 。11层一层只有两户人家 。一个月都不会碰到几次面 。邻里关系简单 。生活互相影响的可能性较低 。私密性高 。18层一层最少要居住四户人家 。但是公共区域依然和11层相差无几 。生活互相影响的可能性大大增加 。
18层电梯高峰期使用不便 。11层、18层的电梯数量是没有变化的 。但是18层的住户数量则增加很多 。11层住户22户 。按照每户3人计算 。总共66人 。一部电梯服务66人;18层住户72 。按照每户3人计算 。总共216人 。一部电梯服务108人 。简单对比 。18层电梯服务人数增加了42人 。增长了64% 。高峰期时候18层电梯等待时间肯定远远超过11层 。
11层小区视野开阔、居住舒适度高 。11层小区楼高只有33米 。依然属于一个低密度小区 。采光遮挡可能性较低 。18层楼高有54米 。属于高密度社区 。对小区大部分低楼层的住户有压迫感 。
二、18层中间户型比11层差 。中间户型都是南北不通透、连廊户型 。

文章插图
18层中间户是连廊户型图

文章插图
根据设计规范要求 。18层必须设置2部电梯 。必须互相联通 。这就导致18层无法建设成一梯两户户型 。只能设计两梯四户户型 。这就导致所有中间户要不就是南北不通透的户型 。要不就是连廊户型 。
- 韶华的拼音 韶华的拼音及解释
- 点缀的拼音 点缀的拼音及解释
- 信用卡欠款6年没有偿还能力会坐牢吗
- 挨的拼音 挨的组词
- 猫后脚指甲外露
- 最快速的运动减肥方法有什么?
- 单纯的醉驾怎么处罚 单纯的醉驾怎么处罚的
- 撇的拼音 撇的组词
- 哈密瓜的功效与作用及禁忌
- 南通2023上半年中小学教资面试考区有哪些?
